Repräsentative Gewerbefläche am Ku’damm – 153 m², 5 Räume, modernisiert 2025

Repräsentative Gewerbefläche am Ku’damm – 153 m², 5 Räume, modernisiert 2025

Westfälische Straße, 10711 Berlin

Key Data

Unit
140-4
Address
Westfälische Straße, 10711 Berlin
Base Rent
3816
Deposit
11.448 €
Floor Space
153
Bedrooms
2
Bathrooms
1
Warmmiete
4312
Nebenkosten
496
Gesamtfläche
153 m²
About

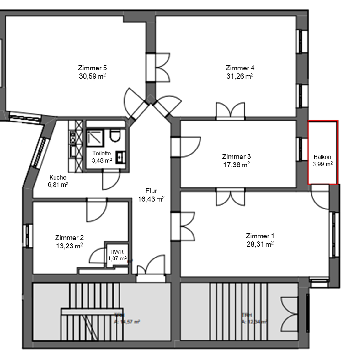
Diese repräsentative Gewerbefläche mit ca. 153 m² befindet sich im Hochparterre eines gepflegten Altbaus in der Westfälischen Straße in Berlin-Wilmersdorf. Die Fläche verfügt über insgesamt fünf gut geschnittene Räume, die sich flexibel als Büro-, Praxis- oder Kanzleifläche nutzen lassen.

Im Jahr 2025 wurde die Einheit umfassend modernisiert und präsentiert sich in einem zeitgemäßen und gepflegten Zustand. Hohe Decken und großzügige Fensterfronten schaffen eine helle, freundliche Arbeitsatmosphäre. Der stilvolle Parkettboden unterstreicht den Altbaucharakter und verleiht den Räumen einen repräsentativen Charme.

Ausstattung

  • ca. 153 m² im Hochparterre
  • 5 großzügige, flexibel nutzbare Räume
  • Hochwertiger Parkettboden
  • Umfassende Modernisierung in 2025
  • Helle Räume durch große Fenster und hohe Decken
  • Gepflegter Altbau mit repräsentativem Eingangsbereich
Furnishing Details
No furnishing details.

Gallery